RESOLUTION 16763K | 31RSV16763KH

RESOLUTION 16763K

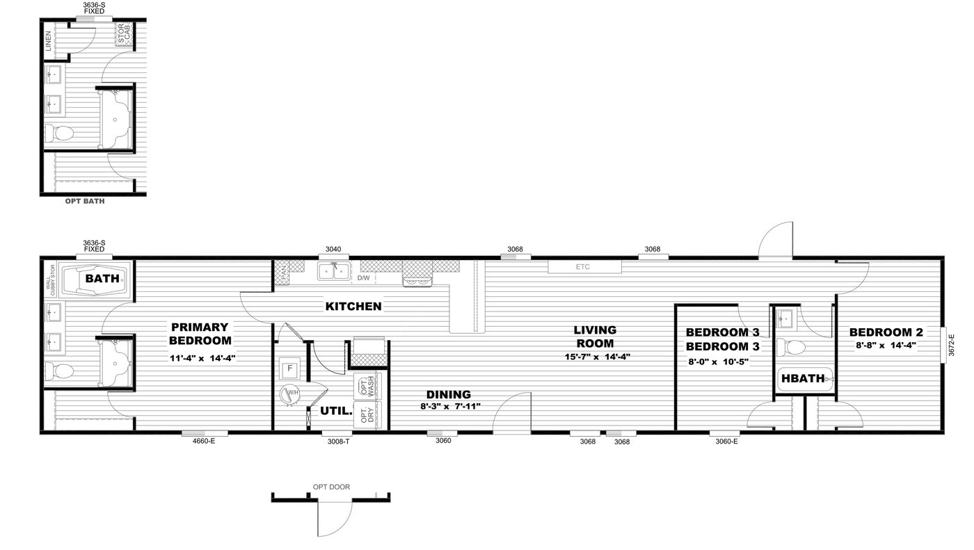
Model Number 31RSV16763KH
Box Size 16 × 76
Sq. Ft. 1140
Beds 3
Baths 2
Resolution 76K
The RESOLUTION 16763K Floor Plan

Interiors

Interior Designer

• DISCLAIMER

  • All Bath Cabinets Are Canvas (White)
  • Entertainment Center Matches Trim
  • All Countertops Match Throughout Home

RESOLUTION 16763K | Lonestar

Lonestar

Cabinetry - Canvas

Countertops - Basalt

Accent Panel - Willow White

Trim - Club Oak

Lonestar

Hill Country

Cabinetry - Canvas

Countertops - Onyx Ice

Accent Panel - Denim

Trim - Grand Canyon

Hill Country

Alamo

Cabinetry - Club Oak

Countertops - Basalt

Accent Panel - Willow White

Trim - Club Oak

Alamo

Longhorn

Cabinetry - Grand Canyon

Countertops - Onyx Ice

Accent Panel - Wintery Wood

Trim - Grand Canyon

Longhorn

Cast Iron

Cabinetry - Onyx

Countertops - Onyx Ice

Accent Panel - Willow White

Trim - Onyx

Cast Iron

Virtual Tour

• Shown in: Lonestar interior color package