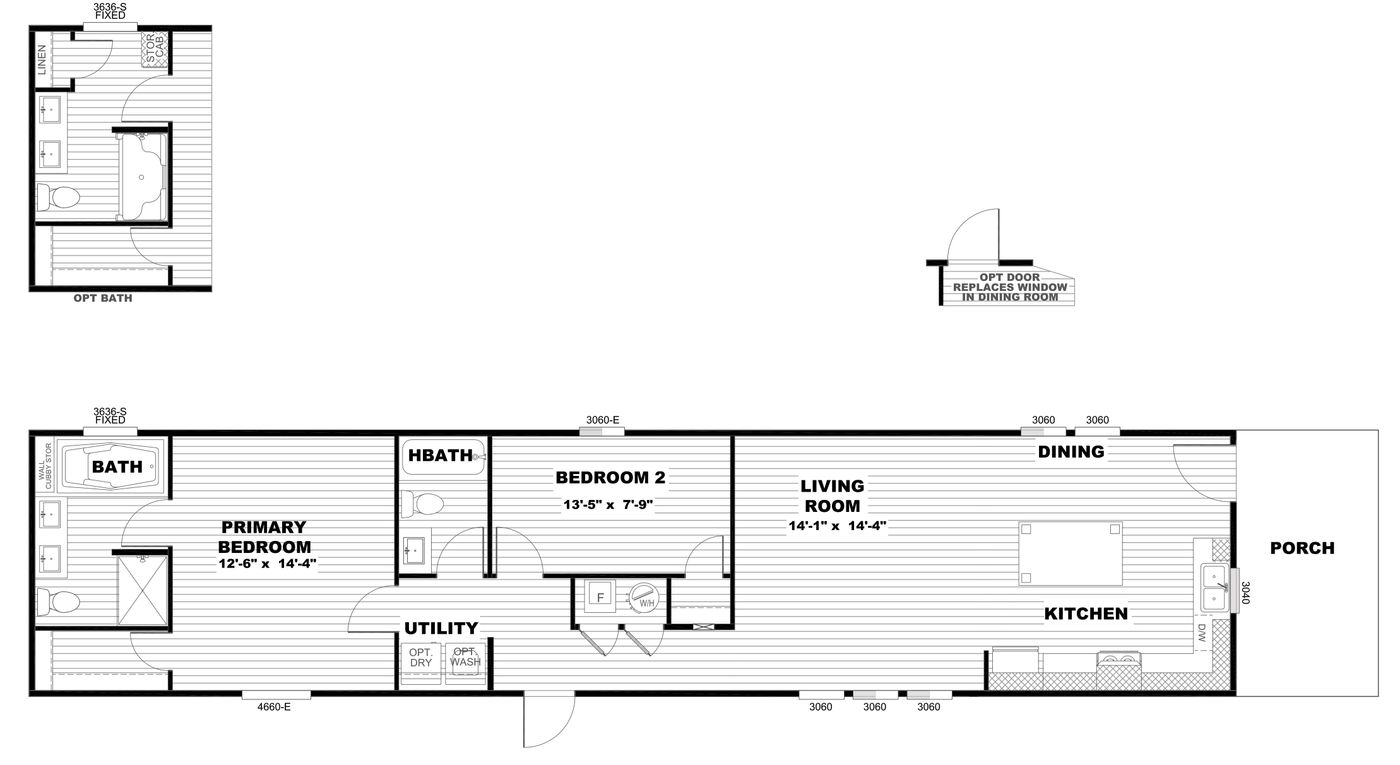
RETREAT LIVING 16682A | 31RLS16682AH

RETREAT LIVING 16682A

Model Number 31RLS16682AH
Box Size 16 × 68
Sq. Ft. 1020
Beds 2
Baths 2
The RETREAT LIVING 16682A Floor Plan

Interiors

Interior Designer

• DISCLAIMER

  • All Bath Cabinets Are Canvas (White)
  • Entertainment Center Matches Trim
  • All Countertops Match Throughout Home

RETREAT LIVING 16682A | Lonestar

Lonestar

Cabinetry - Canvas

Countertops - Basalt

Accent Panel - Willow White

Trim - Club Oak

Lonestar

Hill Country

Cabinetry - Canvas

Countertops - Onyx Ice

Accent Panel - Denim

Trim - Grand Canyon

Hill Country

Alamo

Cabinetry - Club Oak

Countertops - Basalt

Accent Panel - Willow White

Trim - Club Oak

Alamo

Longhorn

Cabinetry - Grand Canyon

Countertops - Onyx Ice

Accent Panel - Wintery Wood

Trim - Grand Canyon

Longhorn

Cast Iron

Cabinetry - Onyx

Countertops - Onyx Ice

Accent Panel - Willow White

Trim - Onyx

Cast Iron

Virtual Tour

• Shown in:
- Hill Country interior color package
- Overhead Air option