Homes
Features
Standard Features
Kwikset Sales Training
Why DuraCraft?
What is ecobee?
Exterior Colors
Factory Tour
Clayton Built
Contact
Toggle navigation
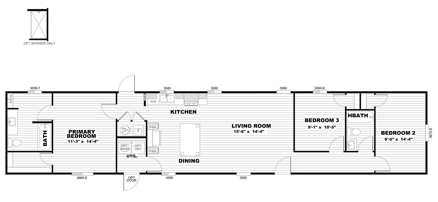
HOMESTEAD 16763A
Model Number
31HSD16763AH
Box Size
16 × 76
Sq. Ft.
1140
Beds
3
Baths
2
Download Sales Sheet
Interiors
×
❮
❯
Virtual Tour
• DISCLAIMER - NO INTERIOR COLOR OPTION AVAILABLE ON THIS MODEL